欢迎来到九通集团有限公司k8凯发官网!  

联系电话:153-5151-3002 |

0.3秒快关阀
您当前的位置 : k8凯发-k8凯发天生赢家一触即发人生 > k8凯发天生赢家一触即发人生的产品中心 > 闸截止阀系列

k8凯发天生赢家一触即发人生的产品中心 product

联系k8凯发天生赢家一触即发人生contact us

九通集团有限公司

手机:15351513002 

手机:15351513006

电话:0515-89118577 

          0515-89118677

          0515-89118277

传真:0515-8911 8000

e-mail:jtongcn@126.com

网址:www.jtongcn.cn

地址:江苏滨海经济开发区瓯北泵阀工业园

电动o型切断球阀

电动o型切断球阀【价格 厂家 生产厂家】-k8凯发

  • 所属分类:闸截止阀系列
  • 发布日期:2020-09-10 17:02:36
24小时免费咨询热线:15351513002
  • 产品概述

电动o型切断球阀

适用于两位切断、调节的场合。阀与执行机构的连接采用直连方式,电动执行机构内置伺服系统,无须另配伺服放大器,输入4-20ma信号及220vac电源即可控制运转。具有连线简单,结构紧凑、尺寸小、重量轻、阻力小、动作稳定可靠等优点。执行机构可根据用户要求另配置unic、psq、hq、dhl等型号电子式电动执行机构或gtx、al等气活塞式执行机构。

电动o型切断球阀  执行标准

1、设计与制造:gb12237-89、api608、api 6d、jpi 7s-48、bs5351、din3357。

2、法兰尺寸:jb/t74~90(jb74~90)、gb9112~9131、hgj44~76、sh3406、ansi b16.5、jis b2212~2214、nf e29-211、din2543。

3、结构长度:gb12221-89、ansi b16.10、jis b2002、nf e29-305、din3202。

4、检验主试验:jb/t 9092、api 598。

电动o型切断球阀  规格参数

ch系列执行机构技术参数

阀体参数

电源

ac200/220v,50/60hz

公称通径

dn10~300mm

输出力矩

50n·m~2000n·m

公称压力

pn1.6 2.5 4.0 6.4 31.5mpa(定制)

动作范围

0~90° 0~360°

泄漏量

软密封:零泄漏

硬密封:≤额定流量的10-5

动作时间

15秒/30秒/60秒

执行机构

可另配psq、hq、unic、361rs等系列电子式电动执行机构

保护装置

过热保护

流量特性

快开特性

环境温度

-30°~60°

可调范围

dn10-80

dn100-300

250:1

350:1

手动操作

同附带手柄操作

基本误差

±1%

限位

电气、机械二重限位

死区

≤1%

防护等级

相当于ip-65

回差

≤1%

位置测量

可选装开关或电位计

适用温度

密封面

驱动电机

8w/e

ptfe≤150℃ rtfe≤180℃ ppl≤300℃ 硬密封≤450℃

进线接口

pe1/2〞进线线锁

ch系列执行机构可直接接收计算机或工业仪表等输出的4~20madc或1~5vdc控制信号,220vac电源,根据阀位反馈信号与设定值比较偏差对执行机构驱动电机进行智能步距调整(pid调节),以实现与执行机构配套的阀门或其他装置开度的准确定位,同时输出4~20madc的位置反馈信号。其核心控制部件电子式伺服控制器应用现代数字技术,对dcs/plc规范设计而成,集信号采集、处理、反馈、控制于一体。采用独创的电子制动电路并附加机械阻尼装置消除惯性,可瞬时停机,定位时无振荡,定位精度可达0.3%以上。可控硅输出,动作时间快,输出稳定,可靠性高。体积小,轻便宜人,性能可靠,配套简单,流通能力大,特别适合于介质是粘稠,含颗粒,纤维性质的场合。目前该阀广泛应用于食品,环保,轻工,石油,造纸,化工,教学和科研设备,电力等行业的工业控制系数。

电动o型切断球阀  技术参数性能

试验压力
(mpa)

公称压力(mpa)

压力级(class)

jis(mpa)

1.6

2.5

4.0

6.4

10.0

150

300

600

10k

20k

强度试验

2.4

3.8

6.0

9.6

15.0

3.1

7.8

15.3

2.4

3.8

密封试验

1.8

2.8

4.4

7.0

11.0

2.2

5.6

11.2

1.5

2.8

气密试验

0.5~0.7                          

电动o型切断球阀  主要零件材料

零件名称

材 料

阀体

wcb

zg1cr18ni9ti

cf8
(304)

cf3
(304l)

zg1cr18ni12mo2ti

cf8m(316)

cf3m
(316l)

球体、阀杆

2cr13

1cr18ni9ti

0cr19ni9
(304)

00cr19ni11
(304l)

1cr18ni12mo2ti

0cr17ni12mo2
(316)

00cr17ni12mo2
(316l)

密封圈

聚四氟乙烯(ptfe)、增强聚四氟乙烯(ppl)、对位聚苯 柔性石墨

适用介质

水、气体、蒸汽、油品等

硝酸等腐蚀性介质

强氧化性介质

醋酸等腐蚀介质

尿素等腐蚀性介质               

电动o型切断球阀  理想流量特性表

公称通径

不同开度角下的kv值

温度

10°

20°

40°

50°

60°

70°

80°

90°

50

2

4

9

17

32

60

97

151

215

80

6

11

22

44

83

155

250

389

550

100

9

18

35

71

133

248

398

620

890

150

20

40

80

160

300

560

900

1400

2000

200

36

72

143

286

737

1002

1611

2506

3580

250

57

113

226

453

848

1582

2543

3955

5650

300

81

163

325

651

1220

2278

3661

5695

8100

o型切断球阀厂家

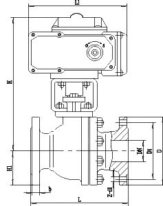
电动o型切断球阀  外形尺寸

公称压力dn

l

d

h

l1

d1

b

z-d1

h1

压力

1.6/2.5/4.0

1.6/2.5/4.0



1.6/2.5/4.0

1.6/2.5/4.0

1.6/2.5/4.0


15

130/130/140

95

275

157

65

14/16/16

4-14

48

20

140/140/150

105

280

157

75

14/16/16

4-14

53

25

150/150/165

115

287

157

85

14/16/16

4-14

58

32

165/165/180

135

354

208

100

16/16/18

4-18

68

40

180/180/200

145

312

208

110

16/16/18

4-18

73

50

200/200/220

160

325

208

125

16/20/20

4-18

80

65

220/220/250

180

335

256

145

18/22/22

4-18/8-18/8-18

90

80

250/250/280

195

365

256

160

20/22/22

8-18

98

100

280/280/320

215/230/230

400

256

180/190/190

20/24/24

8-18/8-23/8-23

120

125

320/320/360

245/270/270

420

256

210/220/220

24/28/30

8-23/8-25/8-25

140

150

360/360/400

280/300/300

440

256

240/250/250

24/28/30

8-23/8-25/8-25

167

200

400/400/550

335/360/375

470

256

295/310/320

26/34/38

12-23/12-25/12-30

210

250

630 750

405 470

545

380





300

750 870

460 530

580

380






上一篇:气动o型切断球阀2020-09-10
下一篇:衬氟球阀q41f462020-09-10

最近浏览:

相关新闻

联系k8凯发天生赢家一触即发人生

手机:15351513006

座机:0515-89118577

传真:0515-8911 8000

邮箱: jtongcn@126.com

地址: 江苏滨海经济开发区瓯北泵阀工业园

抽气止回阀

全国服务热线

15351513006

网站地图